您现在的位置是:首页 > 创新技术
如何通过室内设计装饰提升企业品质(科技公司篇)
智慧创新站
2025-09-25【创新技术】248人已围观
简介笔者之前一直不太愿意接相关做工厂办公一体化的项目,笔者之前很多类似这样的客户基本大多数都是低价,有些价格低到离谱。笔者能充分理解客户省钱的心理,从笔者的专业性来说,一分价钱,一分货。大多数的实业型带有工厂办公的客户都是基于低价原则,并不是低价不好,只不过笔者不愿意为了低价而过多去牺牲装饰出来的质量。...
笔者之前一直不太愿意接相关做工厂办公一体化的项目,笔者之前很多类似这样的客户基本大多数都是低价,有些价格低到离谱。笔者能充分理解客户省钱的心理,从笔者的专业性来说,一分价钱,一分货。大多数的实业型带有工厂办公的客户都是基于低价原则,并不是低价不好,只不过笔者不愿意为了低价而过多去牺牲装饰出来的质量。毕竟对于笔者来说,每一个客户都是笔者珍贵的际遇。笔者希望通过自己专业的室内设计装饰服务帮助客户企业提升品质的同时,也和客户成为互相信赖的朋友关系,而不是冷冰冰的一次性服务。

上海臻祺建设集团、一级资质、专注于办公室设计装饰十余年
言归正传,本案的客户是一家做数控的公司,整个项目4000平方上下4层楼,一层仓库、二层车间、3层办公室、4层(暂未做安排,后期客户计划做企业接待会所,我强烈建议客户不做此项,毕竟成本是比较高的)在笔者刚拿到项目资料的时候说实话有点不太敢碰,有点担忧客户过度压价,导致后期设计装饰出不来质量。笔者和客户初步见面做沟通的时候,打翻的笔者对于传统制造业的看法,笔者之前确实有点以偏概全的。
客户十分年轻92后,早早出社会打工,用客户的话来说穷人家的孩子早当家,凭借着客户在老东家近十年专业技术打磨,客户打算自己自立门户,通过几年发展,从原来的小作坊摇身一变成为如今职工拥有数百名的中型企业,原来的地方已经不能满足,因此他自掏腰包,在松江购买了一整栋楼来作为自己的总部办公。笔者听完客户的故事十分佩服客户,内心也打定主意,在一定的成本范畴内,一定为客户设计装饰出属于他企业品质文化办公环境。
接下来上干货把
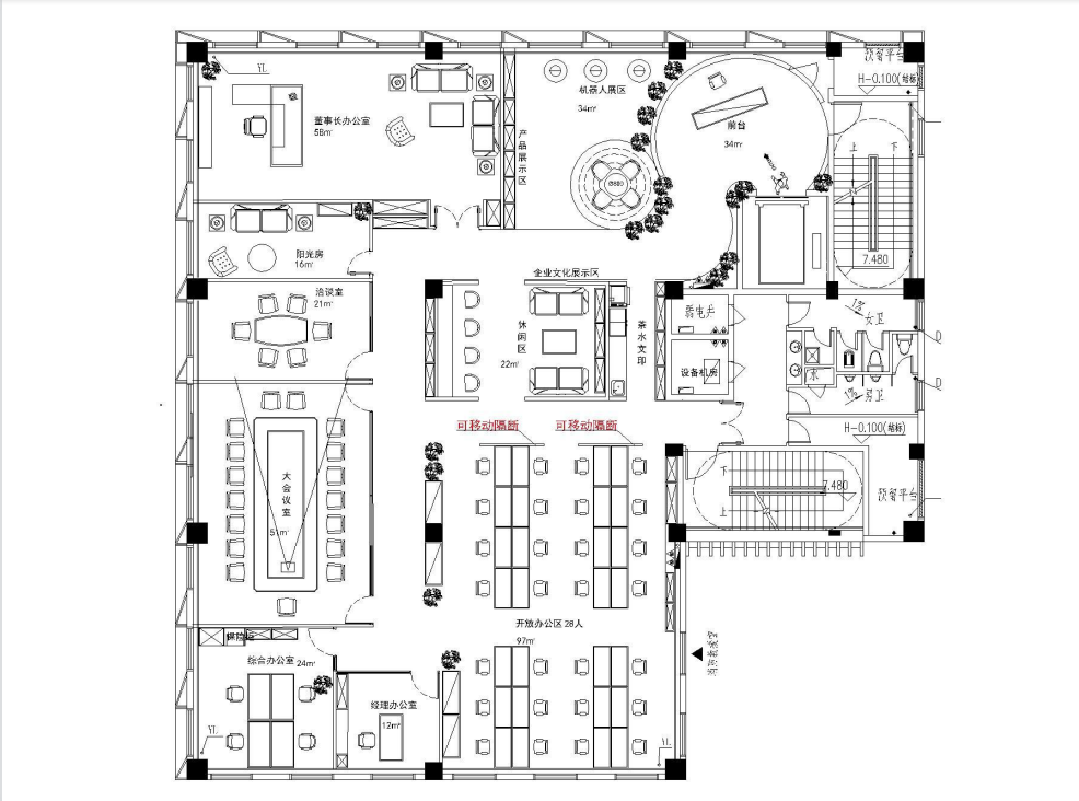
项目设计装饰分析:本案客户办公面积有限,使用的空间十分多,但作为实业性的制造型企业,还需要从成本角度出发,为客户省下每一分钱,一楼仓库,二楼的车间都是简单的基础性装饰,成本花费50万,基本上就是地面环氧地坪漆、强弱电、照明、顶面喷漆、还有一些简单的房间隔断。本案最为主要是三楼办公空间的设计,笔者和客户沟通中了解到,客户希望既能体现自己是一家科技公司,同时又能给人感觉公司非常有实力。

定稿平面方案
笔者团队经过细致的分析后最终决定用高级灰和不同颜色的组合来进行此次项目设计主题,我们把前厅和展厅进行融合,通过有限的空间打造出流畅的动线安排,笔者团队经过分析发现企业多数来访客户基本都是董事长接待,因此我们把董事长的位置放置靠近展厅和前台的位置,为了实现职工和董事长动线路线的分流,我们通过打造开放式接待区,茶水文印区来实现职工动线上面的路线分流。有限的空间中我们给董事长旁边预留了一个阳光房茶室,既可以作为单独空间使用,又可以作为茶室等待室使用,实现空间区域利用的最大化。
前台区域:前厅区域在缘有空间不足的基础上,采用圆弧形包裹感,增大人体违和感和视觉延申与扩容的效果,主色调高级灰,以暖色进行二八配比,酷感十足又不失温度,简洁的直线条不断变化是这个设计的灵魂所在,主背景墙呈现阶梯性立体形态,象征着企业踏实稳步扎实的前行,嵩橙作为新一代年轻企业的风向标。

前台效果展示
展厅区域:穿过前厅入眼既是企业产品展示区,环形通道把两个空间很好的融合在了一起,通过顶面造型和地面颜色区分,作为划分空间的形式,通透的视觉效果,附带洽谈接待的一个环形空间,满足商务上的功能需求,顶面悬挂企业标识,展品货架分体式独立个体柜,可定制。

展厅区域效果展示

展厅区域效果
企业文化墙展示:利用有限的空间,把立体墙面作为企业文化展墙,世界地图,红色五角星表示嵩橙业务覆盖世界各地的标记。每天员工上班都可以经过这面文化墙,作为企业员工的自豪感强烈带入,与企业共生存共成长。

企业文化墙展示效果
休闲洽谈区:独立的空间,可供客户洽谈,员工会客,休闲放松等,是一个多功能区域

休闲洽谈区效果展示
茶吧区:与洽谈区同属一个独立空间,各分两侧,休闲放松,茶水咖啡。外来客户可临时办公。

茶吧区

阳光房、经理室效果展示
开放式办公区:原始顶面保留现代工业风,黑白色调简洁,采光充足,空间宽敞明亮,可移动轨道屏风,随时可以移动遮挡。地面环氧地坪漆便于清洁。

开放式办公区效果展示
大会议室:直线条构造出空间简洁大气,黑白色调对比强烈

大会议室效果展示
董事长办公室:直线条构造出空间简洁大气,黑白色调对比强烈。

董事长办公室效果展示
董事长效果图展示
最后在说大家关心的成本的问题,3楼办公室硬装成本140万,家具成本42万,一楼二楼厂区50万,总共花费232万。4000平方的独栋企业办公。后面和客户沟通的时候才知道客户原本以为要花费400万,通过我们的努力给客户节省了近170万的开支。如果大家有需要咨询的可以私信留言我。
很赞哦!(107)